Double face (WIP) - Arcade Studio

Cerca nel sito
Vai ai contenuti

Menu principale:

Double face (WIP)

Progetti > Residenziale
Rendering
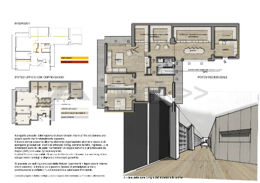
Ristrutturazione di unità immobiliare posta nel cuore di Bologna

Pianta Double face
 

Double face (WIP)
Location: Bologna – Galleria Cavour
Superficie:  mq 200

Team di progettazione: Arcade Studio - arch. Carola Fumarola

All’interno di un palazzo del periodo Littorio posto nel centro storico di Bologna, l’unità immobiliare posta all’ultimo piano è stata oggetto di una specifica richiesta da parte del Committente: pochi interventi strutturali e la possibilità di organizzare gli spazi e gli arredi interni in modo che con leggeri accorgimenti l’unità immobiliare possa essere destinata a residenza o, in alternativa, ad ufficio. La planimetria è stata quindi verificata per essere coerente sia in una versione che nell’altra, proprio come una giacca double-face confezionata con cura, atta a garantire le stesse performance funzionali in entrambi i casi.
Interventi finalizzati quindi ad una rivalutazione architettonica dell’involucro, caratterizzato in parte da solai di copertura lineare e in parte mansardati, creando in quest’ultima porzione terrazzi in falda quali incrementi di luce.
Finiture interne spinte ad una ambientazione neutra, totalmente bianca con tagli di porte a tutta altezza, bagni e cucine in corian, cortine verdi e arredo per esterno sui lunghi terrazzi perimetrali quali luoghi da vivere per omaggiare la vista sulle storiche architetture bolognesi.
 
Arcade Studio Architettura e Design • www.arcadestudio.it • arcadestudio@arcadestudio.it • Tel. +39 051 9921728 • P.Iva 02459001208
Torna ai contenuti | Torna al menu