Foglio di carta (WIP) - Arcade Studio

Cerca nel sito
Vai ai contenuti

Menu principale:

Foglio di carta (WIP)

Progetti > Residenziale
Rendering
"Costruire non tanto volendo provocare le emozioni, quanto ammettendo le emozioni. Restare saldamente attaccati alla cosa stessa, vicini all'essenza dell'oggetto"
Peter Zumthor
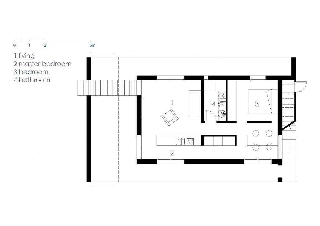
Pianta Foglio di carta
 

WIP: Nuova costruzione  di casa rurale  e Interior design
Superficie: 60 mq

Team di progettazione: Arcade Studio - arch. Carola Fumarola

Nella campagna pugliese, in un lotto agricolo di circa 3 ettari, in un paesaggio aspro, privo di vegetazione e di riferimenti storici da conservare, si è accettata la scommessa di un progetto che attua un intervento di riqualificazione paesaggistica mediante la piantumazione di essenze arboree autoctone (ulivi, querce, carrubi, fichi d’india) e la costruzione di una residenza di modeste dimensioni, solo 60 mq, che racchiuda in sé tutte le funzioni necessarie.
Una piattaforma in cemento armato, sollevandosi dal piano di campagna di circa 35 cm, come un foglio di carta si ripiega su sé stessa e, dispiegandosi, diventa copertura e non solo: essa è schermatura degli ambienti sottostanti dai raggi solari estivi, e le aperture finestrate risultano pertanto prive di oscuranti, per garantire fughe prospettiche e il contatto visivo più ampio e diretto con il contesto agricolo circostante.
L’utilizzo di pietra locale in tufo per l’involucro casa e le superfici intonacate dipinte in bianco calce seguono i criteri di osservanza dei materiali e delle tradizioni costruttive locali.
 
Arcade Studio Architettura e Design • www.arcadestudio.it • arcadestudio@arcadestudio.it • Tel. +39 051 9921728 • P.Iva 02459001208
Torna ai contenuti | Torna al menu