Mandorla amara (WIP) - Arcade Studio

Cerca nel sito
Vai ai contenuti

Menu principale:

Mandorla amara (WIP)

Progetti > Restauri
Mandorla amara

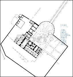
Piante
Concept
Concept
Concept
 

Mandorla amara (WIP)
Progetto di restauro conservativo e cambio d’uso di una masseria in resort di lusso posto nel cuore di un uliveto secolare in Puglia
Location: Comune di Monopoli (BA)
Cliente: Privati
Superficie: 4000 Mq circa + 11.051 mq di pertinenze
Team di progettazione: Arcade Studio - Arch. Carola Fumarola

Nel territorio di Monopoli, al confine con quello di Fasano, la Masseria denominata “Mandorla amara” occupa un lotto di circa 3 ha di costruzione circoscritta all’interno delle alte mura di cinta fortificate, e parte integrante di una pertinenza agricola che si estende per ulteriori 11 ettari, coltivati a ulivi, mandorli e frutta.
Il progetto, attualmente in fase di sviluppo, si inserisce in un ambito ad alto valore paesaggistico, storico e culturale, e prevede il restauro, il risanamento e la riconversione funzionale dell’intero complesso edilizio costituito da più corpi di fabbrica.


Lo studio e l’applicazione delle normative urbanistiche che disciplinano i dettami per la riconversione di tali stabili in disuso appartenenti al passato, fanno sì che il corpo di fabbrica principale (ex residenza padronale) e gli annessi del piano terra che ieri accoglievano stalle, frantoi, depositi, cucine e altri spazi connessi alle attività legate alle cultura degli ulivi, oggi siano riconvertiti in attività ricettive di alto livello legate al turismo rurale, che permettono la collocazione in siffatte strutture di Resort di lusso legate alla Dimora storica, con i servizi collegati quali SPA, Zone ricevimenti, convegn ecc. (Assessorato Turismo Puglia).
Anche l’esterno è oggetto di un puntuale landscape che ridisegna i percorsi di accesso e il giardino interno all’italiana e le ampie aie di chianche , aranceti.
Il progetto prevede il recupero assoluto sia dei meteriali lapidei che degli spazi originari esaltando gli ambienti dai volumi importanti dalle volte a crociare, a stella, a padiglione , utilizzando accorgimenti di arredo che non intaccano la scatola pur garantendo le funzioni delle nuova attività ricettiva.
 
Arcade Studio Architettura e Design • www.arcadestudio.it • arcadestudio@arcadestudio.it • Tel. +39 051 9921728 • P.Iva 02459001208
Torna ai contenuti | Torna al menu