Sottosopra - Arcade Studio

Cerca nel sito
Vai ai contenuti

Menu principale:

Sottosopra

Progetti > Uffici
Gallery

Progetto
Concept

Sottosopra
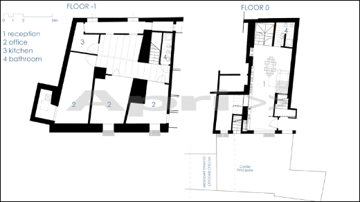
Ristrutturazione di Unità immobiliare ad uso ufficio
Location: Bologna
Cliente: Privato
Superficie: 207 Mq
Team di progettazione: Arcade Studio - Arch. Carola Fumarola

Un'unità immobiliare disposta su due livelli di cui uno interrato illuminato solo da cavedi verso il giardino, viene trasformata da deposito ad ufficio.
Lo stato dei luoghi era al quanto disarmante (vedi immagini pre-intervento), l'unico interesse era rivolto alle geometrie del piano interrato in cui l’incrocio volumetrico di archi e volte ha stimolato la fase progettuale. Il recupero, oltre che formale, ha previsto un vero e proprio risanamento dei locali. Il risultato è un ufficio elegante in cui lo studio delle luci artificiali e dei contrasti tra i bianchi e i neri sopperisce la carenza di luce artificiale conferendo all'unità le funzioni e lo charme richiesto dalla committenza.
 
Arcade Studio Architettura e Design • www.arcadestudio.it • arcadestudio@arcadestudio.it • Tel. +39 051 9921728 • P.Iva 02459001208
Torna ai contenuti | Torna al menu