Urban Flat Porta Mascarella (WIP) - Arcade Studio

Cerca nel sito
Vai ai contenuti

Menu principale:

Urban Flat Porta Mascarella (WIP)

Progetti > Residenziale
Urban Flat

Progetto
Concept
 
 

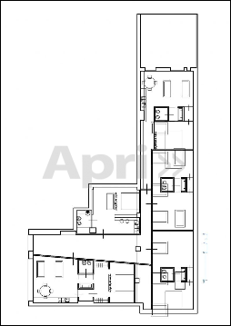
Urban Flat Porta Mascarella (WIP)
Riconversione di ex magazzino in cinque unità ad uso di “residenze temporanee”
Location: Bologna – Porta Mascarella
Cliente: Privato
Superficie: 280 Mq
Team di progettazione: Arcade Studio - Arch. Carola Fumarola

Ristrutturazione di edificio industriale ad uso magazzino con frazionamento e riconversione funzionale in cinque unità immobiliari di ridotte dimensioni, ad uso di “Residenze Temporanee” collegate all’attività Fieristica e Turistica della città di Bologna.
 
Arcade Studio Architettura e Design • www.arcadestudio.it • arcadestudio@arcadestudio.it • Tel. +39 051 9921728 • P.Iva 02459001208
Torna ai contenuti | Torna al menu